Опис Погружной насос Fe Petro STP
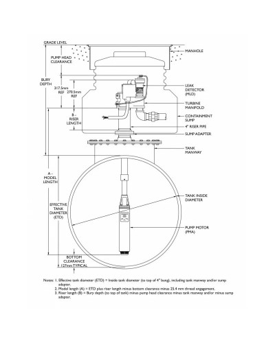
Погружні турбінні насоси FE PETRO від Franklin Fueling Systems — висока продуктивність та надійність для АЗС
Погружні насоси FE PETRO забезпечують продуктивність 40–45 літрів на хвилину на 8–10 паливороздавальних колонках одночасно.
Сервіс, монтаж і постачання по всій Україні
Торгова компанія «Ювента» здійснює постачання, професійний монтаж та сервісне обслуговування погружних турбінних насосів FE PETRO для підземних і наземних резервуарів. Це обладнання виробництва Franklin Fueling Systems (США) — світового лідера у сфері паливних систем.
Переваги перед всмоктувальними системами
Низькі витрати на обслуговування АЗС — мінімальні експлуатаційні витрати.
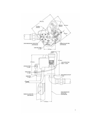
Простий монтаж — відсутність обмежень по довжині трубопроводів.
Висока швидкість подачі — стабільний потік пального на ТРК навіть при піковому навантаженні.
Енергоефективність — знижене споживання електроенергії.
Екологічність і безпека — відповідність сучасним стандартам паливної інфраструктури.
Модельний ряд та характеристики
STP75B-VL2-00
Опис: Однофазний насос.
Робоча довжина: 2290–3850 мм.
Живлення: 220 В.
Потужність: 0,75 к.с.
STP75C-VL2-00
Опис: Трифазний насос.
Робоча довжина: 2270–3830 мм.
Живлення: 380 В.
Потужність: 0,75 к.с.
STP150B-VL2-00
Опис: Однофазний насос.
Робоча довжина: 2340–3910 мм.
Живлення: 220 В.
Потужність: 1,5 к.с.
STP150C-VL2-00
Опис: Трифазний насос.
Робоча довжина: 2320–3880 мм.
Живлення: 380 В.
Потужність: 1,5 к.с.
STPAG150B-VL2-00
Опис: Однофазний насос для етанолу та біодизелю (AG).
Робоча довжина: 2340–3910 мм.
Живлення: 220 В.
Потужність: 1,5 к.с.
STPAG150C-VL2-00
Опис: Трифазний насос для етанолу та біодизелю (AG).
Робоча довжина: 2340–3910 мм.
Живлення: 380 В.
Потужність: 1,5 к.с.
Завантаження
Відгуки про Погружной насос Fe Petro STP
Немає відгуків про цей товар.





